Capannone in vendita

Zanica, Via Paolo Borsellino
€ 1.050.000
10 locali 10 locali
2800 Mq 2800 Mq
3 bagni 3 bagni

Capannone in vendita

Zanica, Via Paolo Borsellino

Descrizione annuncio

Zanica
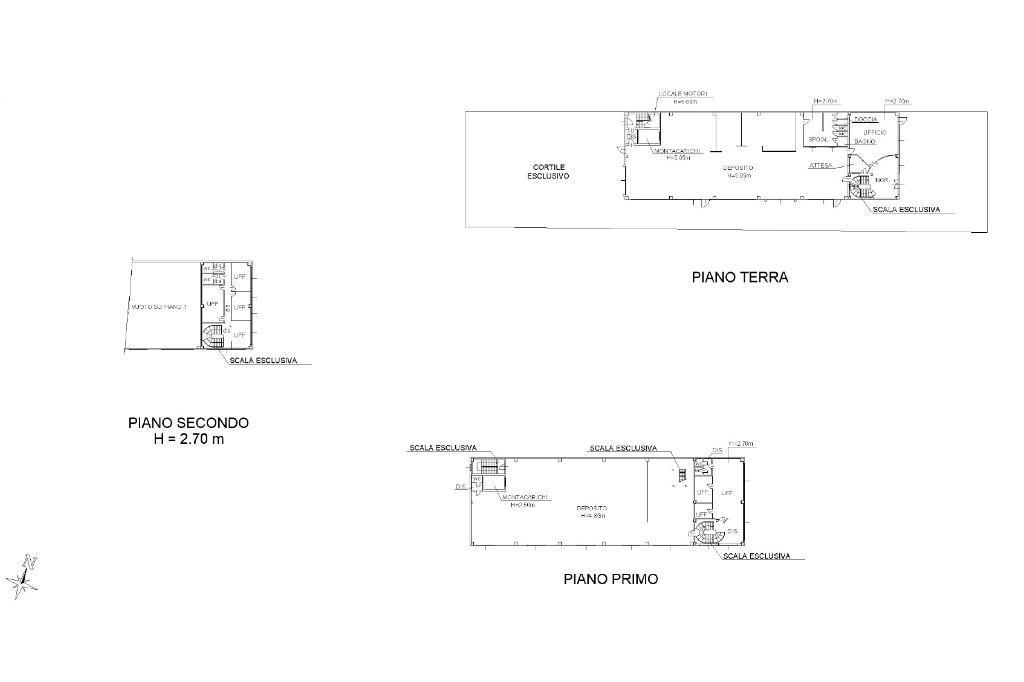
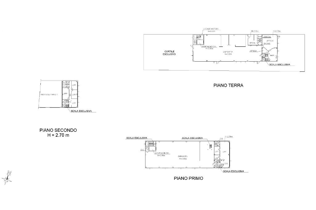
Posizionato in zona produttiva strategica, comoda per superstrada, Brebemi e aeroporto di Bergamo, proponiamo in vendita capannone industriale con palazzina uffici edificato su un lotto di circa 2000 mq.

Il complesso comprende una superficie coperta di 800 mq circa disposta su più livelli, una superficie calpestabile totale di mq 1800 circa oltre a piazzale esclusivo recintato così distribuita:

- al piano terra circa 600 mq a uso capannone con altezza interna pari a 5 m oltre a locali tecnici, spogliatoi e servizi igienici con docce;

- al piano primo circa 600 mq a uso capannone con altezza interna pari a 4,8 m con portata 2000 kg/mq;

- palazzina uffici disposta su tre livelli, di mq 150 circa per livello;

- il tutto collegato internamente mediante scale interne e montacarichi portata 2T;

- area estena di circa 1100 mq distribuita su tre lati dell'immobile, ideale per carico/scarico e parcheggi.

La palazzina uffici include reception, uffici operativi, sala riunioni, servizi, sala server e archivio. Gli ambienti sono climatizzati e le finiture moderne.

Gli impianti sono completi e recentemente aggiornati: illuminazione LED, videosorveglianza, riscaldamento, climatizzazione, antincendio con idranti, aria compressa, allarme e antintrusione certificati.

Classe energetica D – EPgl,nren 341,14 kWh/m² anno.

Mostra tutto

Nelle vicinanze

Trasporto pubblico Trasporto pubblico
Trasporto pubblico
530 m
SAB
SAB
1,9 Km
Scuole Scuole
Scuole
2,5 Km
Farmacia Farmacia
Farmacia Gualteri
2,6 Km
Farmacia Cambiè Dottor Mauro
2,7 Km
Farmacia
2,7 Km
Supermercati Supermercati
Margherita
2,5 Km
Conad City
2,6 Km
Negozi Negozi
Negozi
2,5 Km
Panificio Ca' Del Pa' Mambretti Stefania
2,7 Km
Bar Bar
BariCentro
2,5 Km
Bar Carminati
2,6 Km
Bar Moretti
2,6 Km
Bar Ferrari
2,7 Km
Bar Oratorio di Zanica
2,7 Km
Ristoranti Ristoranti
Èxté
460 m
Ristorante Pizzeria Alla Miniera
1,6 Km
Antico mulino
1,8 Km
Pizzeria Me Gusta
2,3 Km
Al Vecchio Tagliere
2,5 Km
Mostra tutto

Caratteristiche

Rif.:
61148463
Piano:
Su più livelli di 2 con ascensore
Totale piani:
2
Condizionamento:
Autonomo
Ascensore:
Riscaldamento:
Autonomo
Mostra tutto
Prezzo Prezzo
€ 1.050.000
Rata mutuo Rata mutuo
€ 4.948 / mese
Proponi il tuo prezzoProponi il tuo prezzo

Classe Energetica

D
D
D
D
D
D
D
D
D
EP globale non rinnovabile:
341.14 kW h/m² anno
EP globale rinnovabile:
37.96 kW h/m² anno
EP invernale del fabbricato:
EP estiva del fabbricato:
Anno di costruzione:
2002
Riscaldamento:
Autonomo
Tipo impianto:
Ad aria
Tipo alimentazione:
Metano

Ti interessa visionare l'immobile?

Fissa un appuntamento  Fissa un appuntamento

Richiedi informazioni

Clicca su Leggi per aprire l'informativa
* Questi campi sono obbligatori

Calcola il tuo mutuo

Semplice e senza impegno
Anticipo

( % )
Mutuo

( % )

pochi semplici passi

inserisci i tuoi dati
Questionario completato
Grazie per aver richiesto un appuntamento senza impegno con un nostro Consulente del Credito e Assicurativo.

Hai inserito correttamente tutti i dati necessari e a breve riceverai una e-mail con un link da convalidare per inviare i tuoi dati.
Affiliato
Bg Per L'Impresa Srl
Via Piatti, 2 24125 Bergamo (BG)

Il nostro staff


  • Andrea Martinelli
    Affiliato

  • Gofran Gharib
    Collaboratrice
Via Piatti, 2 24125 Bergamo (BG)
Zona: Bergamo Borgo Palazzo-Celadina-Malpensata-Seriate-Azzano San Paolo-Orio al Serio-Grassobbio
Mostra su mappa
Orari: LUN - VEN 8.30/12.30 - 14.30/19.30 SABATO 8.30/12.30
Affiliato
Bg Per L'Impresa Srl
Via Piatti, 2 24125 Bergamo (BG)

2026 Tecnocasa Franchising S.p.A. - P. IVA 08365160152 - Via Monte Bianco 60/A 20089 Rozzano (MI). Ogni agenzia ha un proprio titolare ed è autonoma. Privacy policy | Policy utilizzo | Cookie policy